background
onder bod

Jan Aarjensz Prinsstraat 15 1785 BB Den Helder

Onder bod
Wonen
107 m²
Perceel
166 m²
Aantal kamers
5 kamers (4 slaapkamers)
Bouwjaar
1967
Energielabel
C
SCROLL

Over de
woning

In een fijne en kindvriendelijke woonomgeving staat deze sfeervolle en gemoderniseerde woning met vier slaapkamers en een prachtige serre over de volledige breedte van de woning. Het huis combineert comfort, licht en praktische leefruimte en vormt daarmee een ideale plek voor (jonge) gezinnen die op zoek zijn naar een warm thuis met voldoende ruimte om te groeien.

Bij binnenkomst valt direct de lichte en mooie woonkamer op. Dankzij de grote raampartijen aan zowel de voor- als achterzijde geniet je hier de hele dag van een prettige lichtinval. De gehele begane grond is voorzien van comfortabele vloerverwarming (2022), wat zorgt voor een aangename temperatuur en een strak afgewerkte uitstraling. Aansluitend bevindt zich de moderne keuken, eveneens geplaatst in 2022. Deze keuken is voorzien van diverse inbouwapparatuur en biedt een fijne plek om uitgebreid te koken.

Aan de achterzijde van de woning bevindt zich de sfeervolle serre (2024) en over de volledige breedte van de woning geplaatst. Deze ruimte vormt een prachtige overgang tussen binnen en buiten en maakt het mogelijk om vrijwel het hele jaar door van de tuin te genieten. Of het nu een zonnige lentedag is of een frisse herfstavond, hier zit je altijd comfortabel.

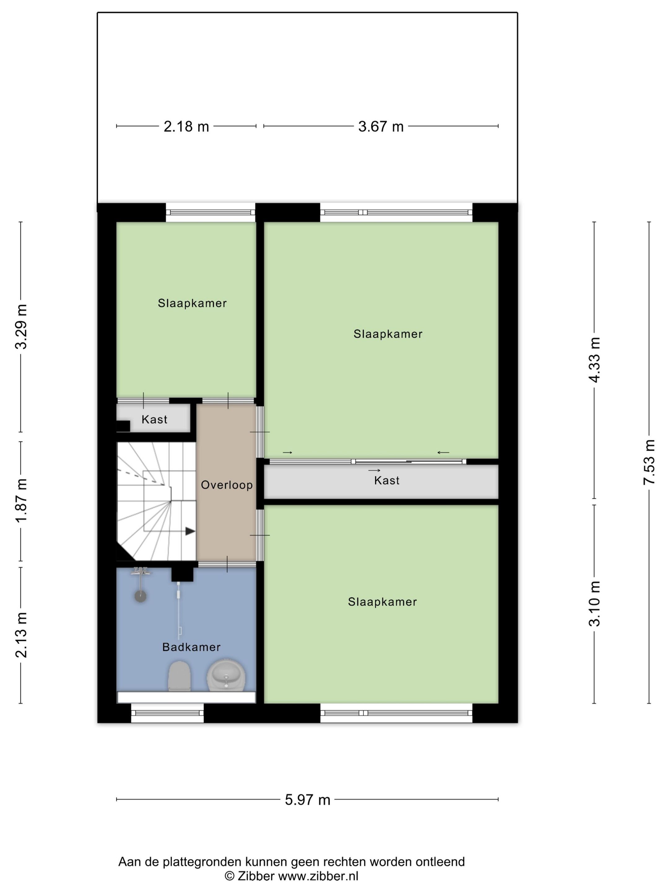
Op de eerste verdieping bevinden zich drie goed bemeten slaapkamers, één slaapkamer aan de voorzijde en twee slaapkamers aan de achterzijde. De badkamer (2008) is praktisch ingericht en voorzien van een douche, toilet en wastafel.

De tweede verdieping is bereikbaar via een vaste trap en biedt nog meer ruimte. Hier bevindt zich een vierde slaapkamer met dakkapel, waardoor deze kamer extra licht en ruimte heeft. Daarnaast is er een voorzolder met een dakraam, de opstelling van de cv-installatie uit 2018 en aansluitingen voor de wasmachine.

De achtertuin (opnieuw aangelegd in 2025, net als de voortuin) ligt op het noorden en is verzorgd ingericht met een berging en een handige achterom. Dankzij de serre kun je ook op dagen dat het weer net iets minder is toch heerlijk van het buitenleven genieten.

Ook aan onderhoud is de afgelopen jaren veel aandacht besteed. Zo zijn de dakpannen in 2020 vernieuwd en beschikt de woning over energielabel C.

De ligging maakt het plaatje compleet. Voor jonge gezinnen is dit een buurt waar alles binnen handbereik is. Verschillende scholen en kinderopvanglocaties liggen vrijwel om de hoek, waardoor kinderen veilig en snel hun eigen plek kunnen bereiken. Ook het winkelcentrum en het centrum zijn binnen enkele minuten te bereiken, ideaal voor de dagelijkse boodschappen of een gezellig uitstapje.

Voor ontspanning hoef je bovendien nooit ver weg. De duinen, het strand en de zee liggen op korte afstand. Even uitwaaien na het eten, in het weekend lange wandelingen langs het strand maken of met de fiets richting de duinen – hier maakt het allemaal onderdeel uit van het dagelijks leven.

Zie jij jezelf hier al wonen? In deze leuke woning komen comfort, ruimte en een fijne ligging perfect samen. Een heerlijke plek om thuis te komen en jarenlang van te genieten.

Richtprijs € 295.000,-- k.k.

Aanvaarding direct
Lees de volledige omschrijving

Algemeen

Richtprijs
€ 295.000 kosten koper
Status
Onder bod
Aanvaarding
In overleg
Soort woonhuis
Eengezinswoning, tussenwoning
Soort bouw
Bestaande bouw
Bouwjaar
1967
Ligging
In woonwijk

Oppervlakten en inhoud

Wonen
107 m²
Gebouwgebonden Buitenruimte
17 m²
Externe bergruimte
7 m²
Perceel
166 m²
Inhoud
380 m³

Indeling

Aantal kamers
5 kamers (4 slaapkamers)
Aantal badkamers
1 badkamer
Aantal woonlagen
3

Energie

Energielabel
C
Isolatie
Dubbel glas
Verwarming
Cv ketel
Warm water
Cv ketel

Kadastrale gegevens

Perceelnaam
Den Helder K 2998
Oppervlakte
166 m²
Eigendomssituatie
Volle eigendom

Bergruimte

Schuur/berging
Vrijstaand steen
Bekijk alle kenmerken

Kenmerken

Overige
documenten

Extra bestanden

Hieronder ziet u de extra bestanden van deze woning.